Previous | Next | Discuss :: Free Advice (General Feng Shui)
Dear Jen,
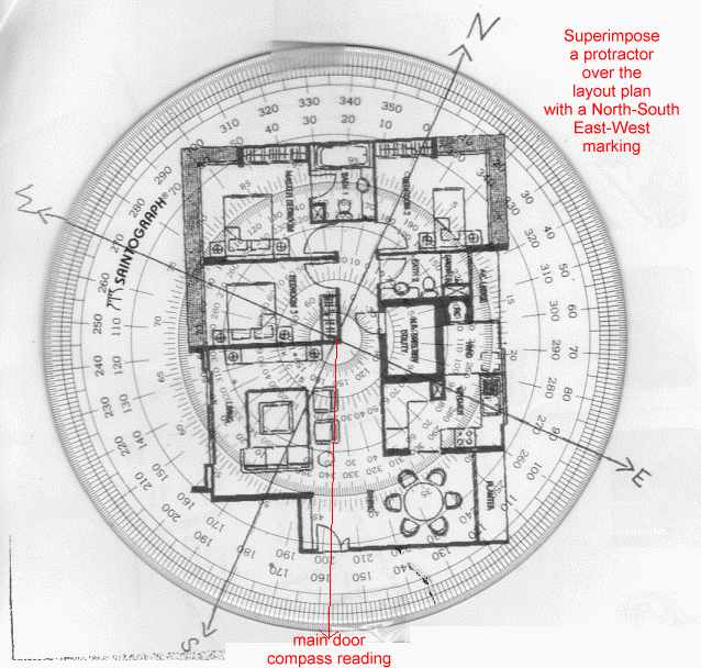
1. Attached please find an illustration of how one can use a protractor to find the main entrance door.
2. A protractor can either be a 360 degrees one as shown in the attached. Or even a 180 degrees protractor is still possible to use.
3. In my opinion, a protractor similar to the one in the picture can easily be purchased in a book or stationery store. And such a protractor costs between US$1 to US$4 or less.
Warmest Regards,
Cecil
protractor.gif
Additional tool: a simple protractor (101,426 bytes)
|
|
[ Site Search | Forum Search | Picture Search | Site Map ] |
|
|
|
|
||
|
Help Desk: (65) 9785-3171 |
||
|
|
|
|
|
Highlights |
|
Extend your learning with Master Cecil Lee's Applied Feng Shui Made Easy Book. |
|
Site Navigation |
|
|
|
|
![]()